1
/
4
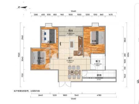
峰景里套三户型方正
峰景里一期 3室2厅
85 万 (9239.13元/m²)
满两年
电梯
本房源已支持VR看房,在线看房,省时省力
基本信息:
小区: 峰景里一期
所属学区: 射洪坝筒车小学
楼层: 高层 /共32层
装修: 毛坯
梯户: 不详
年代: 不详
面积: 92m²
朝向: 东南
附属面积: 不详
同小区房源: 5套在租 67套在售
详情:
用途: 住宅
产权性质: 私产
建筑结构: 钢混结构
房屋类型: 高层
标签: 电梯
配套设施:
无
房源特色:
此房是峰景里比较好的户型,临中庭又看江,中间好楼层,视野好,户型巴适,无增值税。
温馨房地产专注简阳房产30年——用心打造放心中介品牌!
用途: 住宅
产权性质: 私产
建筑结构: 钢混结构
房屋类型: 高层
标签: 电梯
配套设施:
无
房源特色:
此房是峰景里比较好的户型,临中庭又看江,中间好楼层,视野好,户型巴适,无增值税。
温馨房地产专注简阳房产30年——用心打造放心中介品牌!
位置:
房源动态
7日带看(次)
0
累计带看(次)
0
带看记录
| 带看时间 | 带看经纪人 | 咨询电话 |