1
/
4
山漫锦城,朝中庭,诚意出售
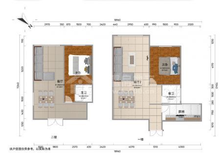
山漫锦城 3室2厅
87.8 万 (7681.54元/m²)
满两年
电梯
随时看房
本房源已支持VR看房,在线看房,省时省力
基本信息:
小区: 山漫锦城
所属学区: 射洪坝第二幼儿园
楼层: 中层 /共16层
装修: 毛坯
梯户: 2梯4户
年代: 2019
面积: 114.3m²
朝向: 东
附属面积: 不详
同小区房源: 1套在租 33套在售
详情:
用途: 住宅
产权性质: 私产
建筑结构: 钢混结构
房屋类型: 小高层
标签: 电梯
配套设施:
无
房源特色:
山漫锦城跃层清水房,赠送面积很大,出门就是鳌山公园
温馨房地产专注简阳房产30年——用心打造放心中介品牌!
用途: 住宅
产权性质: 私产
建筑结构: 钢混结构
房屋类型: 小高层
标签: 电梯
配套设施:
无
房源特色:
山漫锦城跃层清水房,赠送面积很大,出门就是鳌山公园
温馨房地产专注简阳房产30年——用心打造放心中介品牌!
位置:
房源动态
7日带看(次)
0
累计带看(次)
0
带看记录
| 带看时间 | 带看经纪人 | 咨询电话 |