1
/
4
精装了30多万,套三
蓝湖城邦 3室2厅
86.8 万 (8857.14元/m²)
满两年
急售
本房源已支持VR看房,在线看房,省时省力
基本信息:
小区: 蓝湖城邦
所属学区: 射洪坝筒车小学
楼层: 高层 /共25层
装修: 精装
梯户: 3梯6户
年代: 2018
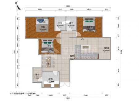
面积: 98m²
朝向: 南
附属面积: 不详
同小区房源: 2套在租 48套在售
详情:
用途: 住宅
产权性质: 私产
建筑结构: 钢混结构
房屋类型: 高层
标签: 暂无标签
配套设施:
床;衣柜;餐桌;沙发;书桌;橱柜;电视;空调;冰箱;洗衣机;油烟机;灶具;热水器;有线;宽带;WIFI;
房源特色:
房东精装30多万,南北通透套三双卫。带名牌家电,主卧室宽大,每间都方正。
温馨房地产专注简阳房产30年——用心打造放心中介品牌!
用途: 住宅
产权性质: 私产
建筑结构: 钢混结构
房屋类型: 高层
标签: 暂无标签
配套设施:
床;衣柜;餐桌;沙发;书桌;橱柜;电视;空调;冰箱;洗衣机;油烟机;灶具;热水器;有线;宽带;WIFI;
房源特色:
房东精装30多万,南北通透套三双卫。带名牌家电,主卧室宽大,每间都方正。
温馨房地产专注简阳房产30年——用心打造放心中介品牌!
位置:
房源动态
7日带看(次)
0
累计带看(次)
0
带看记录
| 带看时间 | 带看经纪人 | 咨询电话 |