步梯简装三居 一卫实用家

  • 图片(9)
  • 户型图(1)
分享房源
38.8
4016.56 元/m²
3室2厅
中层 /共8层
简装
96.6m²
1998年建/ 住宅
所在区域 简阳城区   城东片区
所属学区 简城第三幼儿园
房源编号 M-39753
看房时间 随时看房
18708252158
17608032209
满两年
步梯
随时看房

基本信息

基本属性
  • 房屋户型 3室2厅 1厨 1卫 2阳台
  • 所在楼层 中层 /共8层
  • 建筑面积 96.6m²
  • 房屋税收 个税
  • 使用面积 0m²
  • 建筑类型 多层
  • 附属面积 0m² (无)
  • 房屋布局 平层
  • 房屋朝向
  • 建筑结构 砖混结构
  • 装修情况 简装
  • 梯户比例 1梯2户
  • 所属学区 简城第三幼儿园
  • 出让年限 暂无数据
  • 交易权属 私产
  • 房屋用途 住宅
  • 房屋标签 步梯
  • 房屋特色 【温馨两房】南北通透,采光极佳,近地铁商圈,精装拎包入住,社区安静宜居,高性价比优选!
    温馨房地产专注简阳房产30年——用心打造放心中介品牌!
  • 房屋配套 床;衣柜;餐桌;沙发;书桌;橱柜;电视;空调;冰箱;洗衣机;油烟机;灶具;热水器;有线;宽带;WIFI;

房源照片

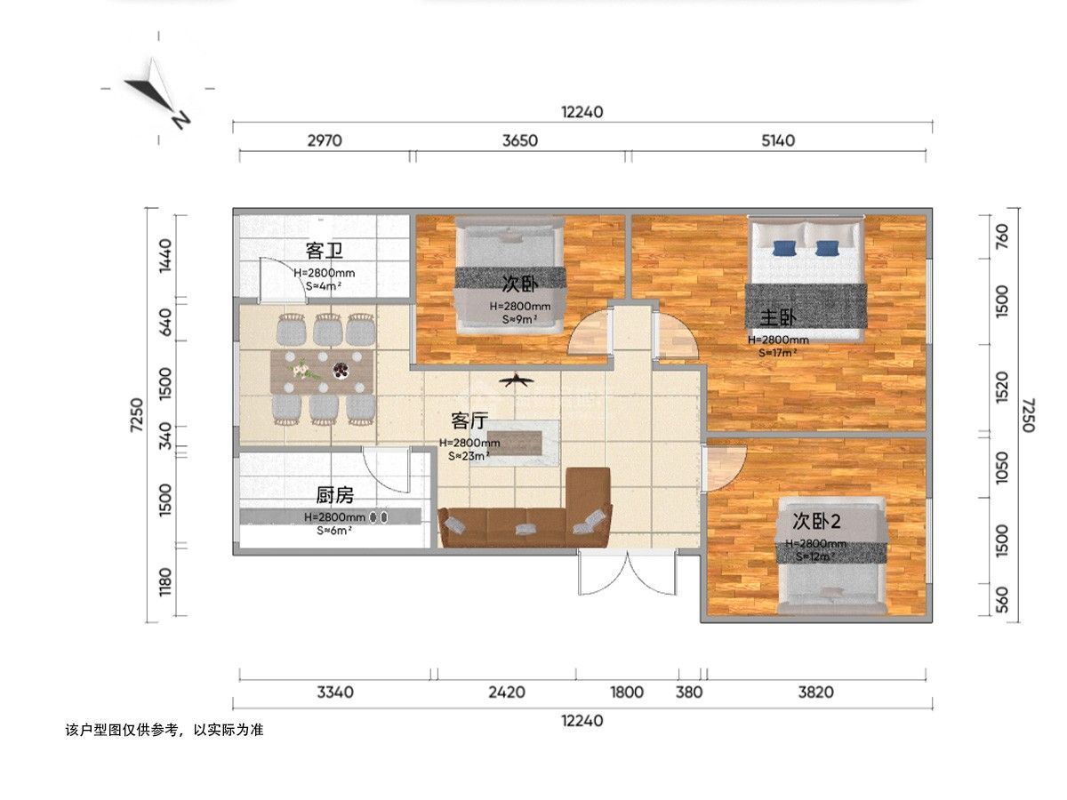
户型图
看房记录
带看时间
带看经纪人
咨询电话
近7天带看次数
0
- 总带看 0 次 -

天然气公司(政府东街)

查看小区详情

天然气公司(政府东街)地址

为你推荐新房 查看更多