兴唐府一楼带大花园无地下室套四出售

  • 图片(11)
  • 户型图(1)
分享房源
258
15734.59 元/m²
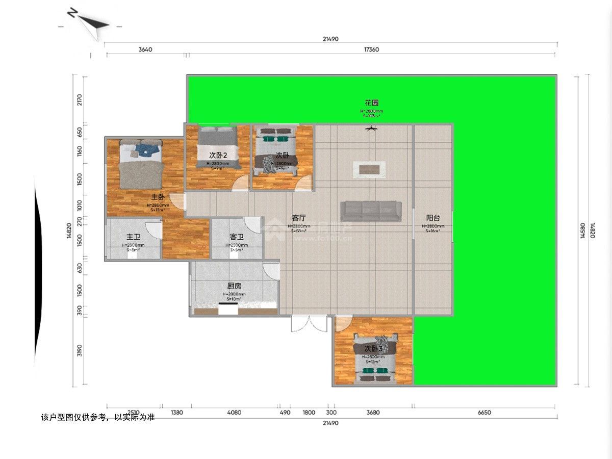
4室2厅
低层 /共7层
毛坯
163.97m²
2022年建/ 住宅
小区名称 兴唐府
所在区域 简阳城区   河东新区
所属学区 射洪坝第一初级中学
房源编号 M-41530
看房时间 随时看房
13551715738
电梯
随时看房

基本信息

基本属性
  • 房屋户型 4室2厅 1厨 2卫 2阳台
  • 所在楼层 低层 /共7层
  • 建筑面积 163.97m²
  • 房屋税收 个税、增值税
  • 使用面积 0m²
  • 建筑类型 洋房
  • 附属面积 100m² (花园/露台)
  • 房屋布局 平层
  • 房屋朝向
  • 建筑结构 钢混结构
  • 装修情况 毛坯
  • 梯户比例 2梯2户
  • 所属学区 射洪坝第一初级中学
  • 出让年限 70年
  • 交易权属 企产
  • 房屋用途 住宅
  • 房屋标签 电梯
  • 房屋特色 洋房一楼无地下室带超大花园面积180平方室内设计科学合理三面花园大平层另包括车位一个
    温馨房地产专注简阳房产30年——用心打造放心中介品牌!
  • 房屋配套

房源照片

户型图
看房记录
带看时间
带看经纪人
咨询电话
近7天带看次数
0
- 总带看 0 次 -

兴唐府地址

为你推荐新房 查看更多