映山岭秀精装套三双卫带车位

  • 图片(10)
  • 户型图(1)
分享房源
86.8
7789.64 元/m²
3室2厅
低层 /共16层
中装
111.43m²
2015年建/ 住宅
小区名称 映山岭秀
所在区域 简阳城区   河东新区
所属学区 射洪坝第二幼儿园
房源编号 M-41936
看房时间 随时看房
13378315807
满两年
电梯
随时看房

基本信息

基本属性
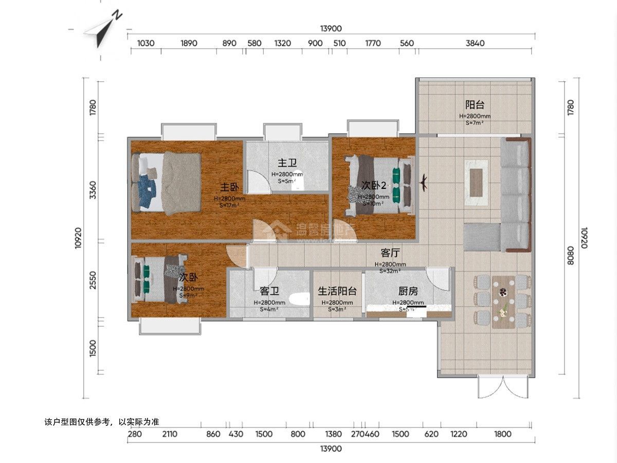
  • 房屋户型 3室2厅 1厨 2卫 2阳台
  • 所在楼层 低层 /共16层
  • 建筑面积 111.43m²
  • 房屋税收 暂无数据
  • 使用面积 0m²
  • 建筑类型 小高层
  • 附属面积 0m²
  • 房屋布局 平层
  • 房屋朝向
  • 建筑结构 钢混结构
  • 装修情况 中装
  • 梯户比例 2梯6户
  • 所属学区 射洪坝第二幼儿园
  • 出让年限 70年
  • 交易权属 私产
  • 房屋用途 住宅
  • 房屋标签 电梯
  • 房屋特色 【精品房源】南北通透三居,豪华装修配齐,近地铁商圈,学区优+车位,宜居投资首选!
    温馨房地产专注简阳房产30年——用心打造放心中介品牌!
  • 房屋配套 床;衣柜;餐桌;沙发;书桌;橱柜;电视;空调;冰箱;洗衣机;油烟机;灶具;热水器;有线;宽带;WIFI;

房源照片

户型图
看房记录
带看时间
带看经纪人
咨询电话
2026-01-10
18228252775
近7天带看次数
1
- 总带看 1 次 -

映山岭秀地址

为你推荐新房 查看更多