依云谷 全装套二诚意出售 送车位

  • 图片(8)
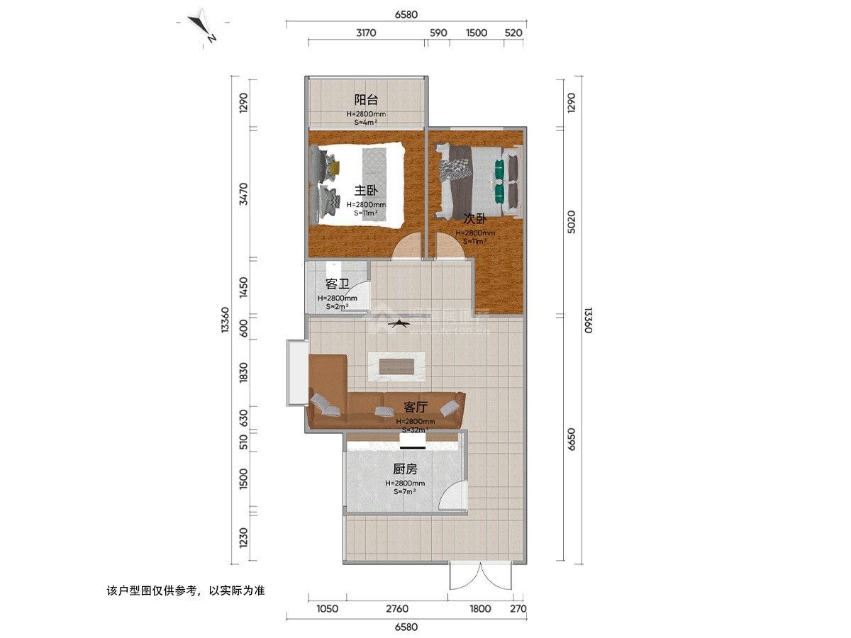
  • 户型图(1)
分享房源
58.8
8054.79 元/m²
2室2厅
中层 /共30层
东南
中装
73m²
2014年建/ 住宅
小区名称 依云谷
所在区域 简阳城区   河东新区
所属学区 射洪坝筒车小学
房源编号 M-42454
看房时间 随时看房
15108147975
电梯
随时看房

基本信息

基本属性
  • 房屋户型 2室2厅 1厨 1卫 1阳台
  • 所在楼层 中层 /共30层
  • 建筑面积 73m²
  • 房屋税收 个税
  • 使用面积 80m²
  • 建筑类型 高层
  • 附属面积 0m² (无)
  • 房屋布局 平层
  • 房屋朝向
  • 建筑结构 钢混结构
  • 装修情况 中装
  • 梯户比例 3梯8户
  • 所属学区 射洪坝筒车小学
  • 出让年限 70年
  • 交易权属 私产
  • 房屋用途 住宅
  • 房屋标签 电梯
  • 房屋特色 【精品房源】南北通透三居,全装修配品牌家电,筒车小学学区配套完善,高楼层视野开阔,即买即住!
    温馨房地产专注简阳房产30年——用心打造放心中介品牌!
  • 房屋配套 床;衣柜;餐桌;沙发;书桌;橱柜;电视;空调;冰箱;洗衣机;油烟机;灶具;热水器;有线;宽带;WIFI;

房源照片

户型图
看房记录
带看时间
带看经纪人
咨询电话
近7天带看次数
0
- 总带看 0 次 -

依云谷地址

为你推荐新房 查看更多