碧波豪庭套三,诚意出售

  • 图片(9)
  • 户型图(1)
分享房源
75.8
7814.43 元/m²
3室2厅
中层 /共33层
中装
97m²
年代不明/ 住宅
小区名称 碧波豪庭
所在区域 简阳城区   河东新区
所属学区 射洪坝第一初级中学
房源编号 M-18241
看房时间 咨询经纪人
18398066286
满两年
电梯

基本信息

基本属性
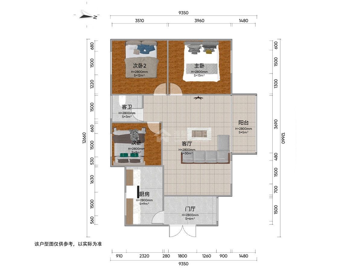
  • 房屋户型 3室2厅 1厨 1卫 2阳台
  • 所在楼层 中层 /共33层
  • 建筑面积 97m²
  • 房屋税收 暂无数据
  • 使用面积 0m²
  • 建筑类型 高层
  • 附属面积 0m² (无)
  • 房屋布局 平层
  • 房屋朝向
  • 建筑结构 钢混结构
  • 装修情况 中装
  • 梯户比例 2梯6户
  • 所属学区 射洪坝第一初级中学
  • 出让年限 70年年
  • 交易权属 私产
  • 房屋用途 住宅
  • 房屋标签 电梯
  • 房屋特色 该房是电梯中间楼层,视野开阔采光好,居家舒适,看房方便有钥匙,房东诚意出售!
    温馨房地产专注简阳房产30年——用心打造放心中介品牌!
  • 房屋配套 床;衣柜;餐桌;沙发;书桌;橱柜;电视;空调;冰箱;洗衣机;油烟机;灶具;热水器;有线;

房源照片

户型图
看房记录
带看时间
带看经纪人
咨询电话
2022-07-06
15108147975
近7天带看次数
0
- 总带看 1 次 -

碧波豪庭地址

为你推荐新房 查看更多