包过户

  • 图片(7)
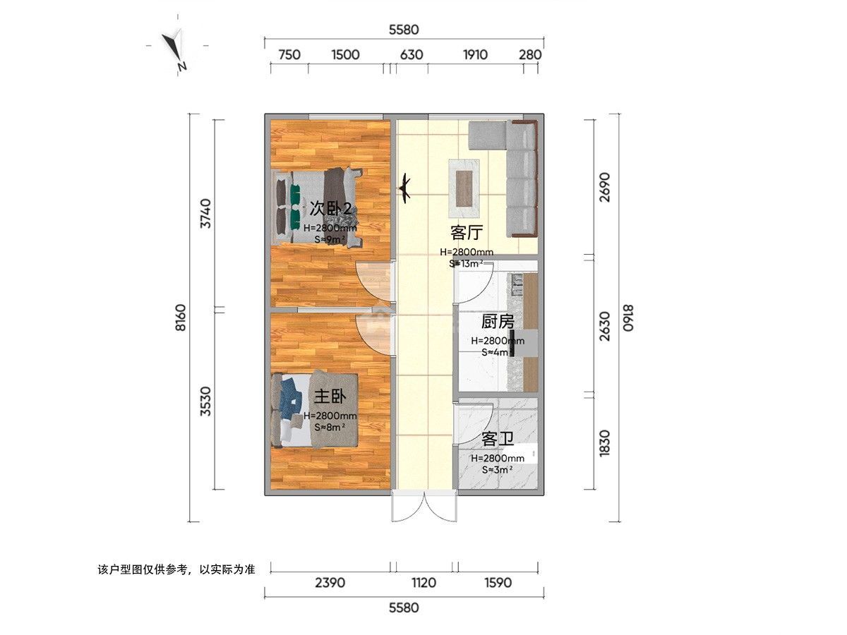
  • 户型图(1)
分享房源
19.8
3038.21 元/m²
2室2厅
高层 /共19层
精装
65.17m²
年代不明/ 住宅
小区名称 羊羊小镇
所在区域 简阳城区   天星公园
所属学区 石桥小学
房源编号 M-38461
看房时间 咨询经纪人
18398066286
电梯

基本信息

基本属性
  • 房屋户型 2室2厅 1厨 1卫
  • 所在楼层 高层 /共19层
  • 建筑面积 65.17m²
  • 房屋税收 无税
  • 使用面积 0m²
  • 建筑类型 高层
  • 附属面积 0m²
  • 房屋布局 平层
  • 房屋朝向
  • 建筑结构 钢混结构
  • 装修情况 精装
  • 梯户比例 暂无数据
  • 所属学区 石桥小学
  • 出让年限 暂无数据
  • 交易权属 私产
  • 房屋用途 住宅
  • 房屋标签 电梯
  • 房屋特色 该房位于羊羊小镇,电梯套二楼层好,全新装修简洁大方,带全套家具家电,可直接拎包入住。
    温馨房地产专注简阳房产30年——用心打造放心中介品牌!
  • 房屋配套 床;衣柜;餐桌;沙发;书桌;橱柜;电视;空调;冰箱;洗衣机;油烟机;灶具;热水器;有线;宽带;WIFI;

房源照片

户型图
看房记录
带看时间
带看经纪人
咨询电话
近7天带看次数
0
- 总带看 0 次 -

羊羊小镇地址

为你推荐新房 查看更多