东方威尼斯精装套二,带全套家具家电,拎包入住

  • 图片(8)
  • 户型图(1)
分享房源
49.8
6021.77 元/m²
2室2厅
中层 /共32层
中装
82.7m²
年代不明/ 住宅
所在区域 简阳城区   城南片区
所属学区 简城城南学校
房源编号 M-38835
看房时间 咨询经纪人
18227920210
电梯
寄售

基本信息

基本属性
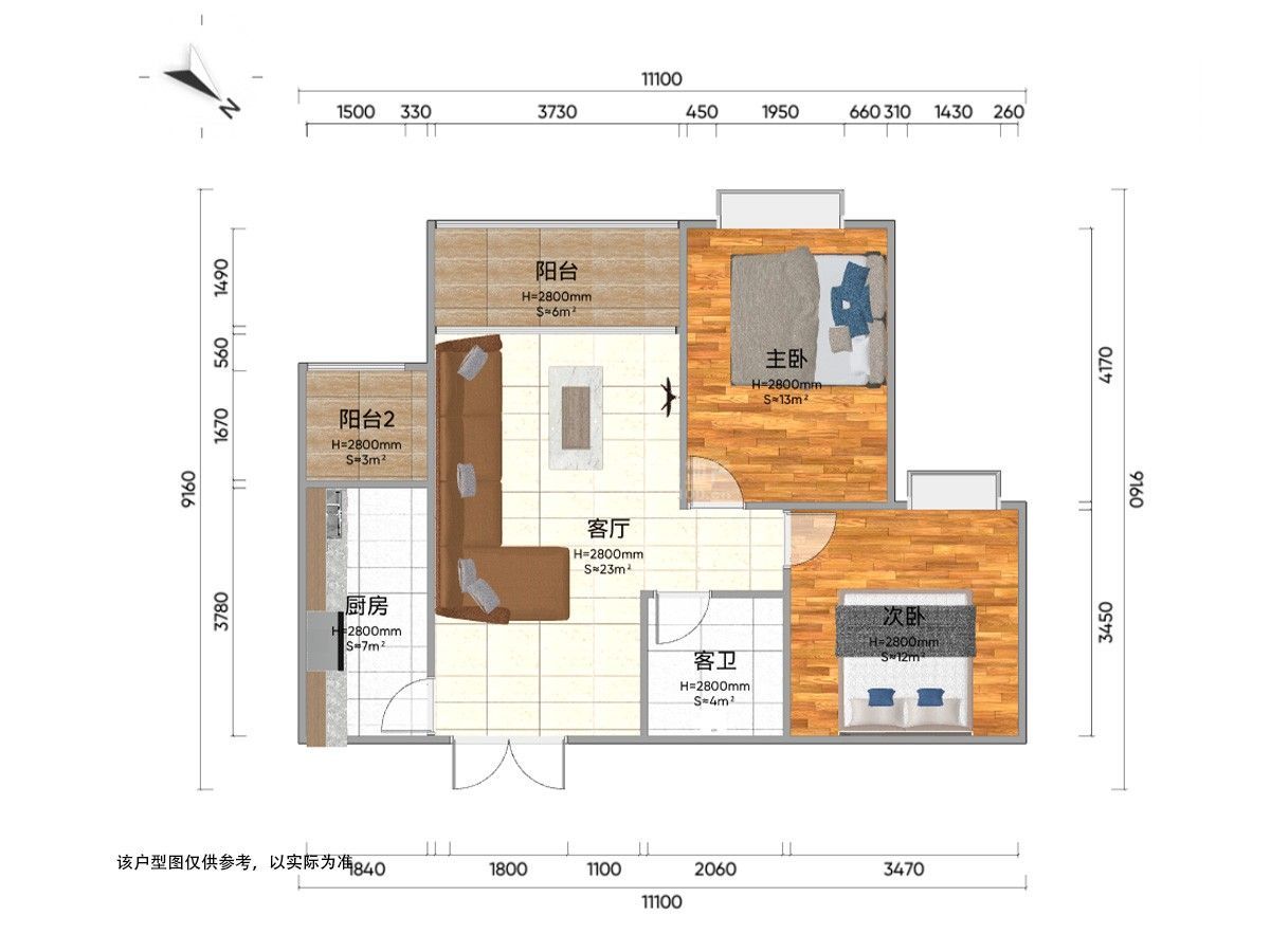
  • 房屋户型 2室2厅 1厨 1卫 2阳台
  • 所在楼层 中层 /共32层
  • 建筑面积 82.7m²
  • 房屋税收 个税
  • 使用面积 0m²
  • 建筑类型 高层
  • 附属面积 0m²
  • 房屋布局 平层
  • 房屋朝向
  • 建筑结构 钢混结构
  • 装修情况 中装
  • 梯户比例 2梯5户
  • 所属学区 简城城南学校
  • 出让年限 暂无数据
  • 交易权属 私产
  • 房屋用途 住宅
  • 房屋标签 电梯
  • 房屋特色 该房位于东方威尼斯中庭位置,中间楼层,视野好,无遮挡,周边配套设施完善,产权满2年,无贷款,居家理想选择!
    温馨房地产专注简阳房产30年——用心打造放心中介品牌!
  • 房屋配套 床;衣柜;餐桌;沙发;书桌;橱柜;电视;空调;冰箱;洗衣机;油烟机;灶具;热水器;有线;宽带;WIFI;

房源照片

户型图
看房记录
带看时间
带看经纪人
咨询电话
2025-11-29
15108150177
近7天带看次数
1
- 总带看 1 次 -

东方威尼斯D区地址

为你推荐新房 查看更多