公园旁电梯装修套三好楼层

  • 图片(10)
  • 户型图(1)
分享房源
58
5043.48 元/m²
3室2厅
中层 /共32层
中装
115m²
2011年建/ 住宅
小区名称 公园印象
所在区域 简阳城区   城北片区
所属学区 城北小学
房源编号 M-39255
看房时间 咨询经纪人
我最近带看过本房1次,非常清楚本房源特色
18228252775
17608032209
电梯

基本信息

基本属性
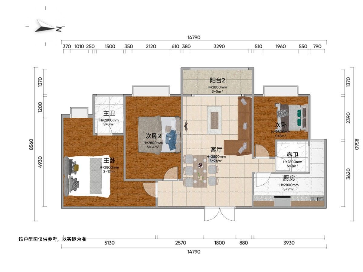
  • 房屋户型 3室2厅 1厨 2卫 1阳台
  • 所在楼层 中层 /共32层
  • 建筑面积 115m²
  • 房屋税收 暂无数据
  • 使用面积 0m²
  • 建筑类型 高层
  • 附属面积 0m²
  • 房屋布局 平层
  • 房屋朝向
  • 建筑结构 钢混结构
  • 装修情况 中装
  • 梯户比例 3梯8户
  • 所属学区 城北小学
  • 出让年限 70年
  • 交易权属 私产
  • 房屋用途 住宅
  • 房屋标签 电梯
  • 房屋特色 住家装修标准套三双卫,人民公园旁,电梯中间楼层,生活方便,产权满五年税低
    温馨房地产专注简阳房产30年——用心打造放心中介品牌!
  • 房屋配套 床;衣柜;餐桌;沙发;书桌;橱柜;电视;空调;冰箱;洗衣机;油烟机;灶具;热水器;有线;宽带;WIFI;

房源照片

户型图
看房记录
带看时间
带看经纪人
咨询电话
2025-11-14
18228252775
2025-10-25
18398066286
2025-10-24
15108153910
近7天带看次数
0
- 总带看 3 次 -

公园印象 地址

为你推荐新房 查看更多