世外桃源套二好楼层带结构板

  • 图片(8)
  • 户型图(1)
分享房源
45
5440.04 元/m²
2室2厅
低层 中层 /共6层
西南
中装
82.72m²
2012年建/ 住宅
小区名称 世外桃苑
所在区域 简阳城区   河东新区
所属学区 射洪坝第二幼儿园
房源编号 M-40799
看房时间 咨询经纪人
18708252158
满两年
步梯

基本信息

基本属性
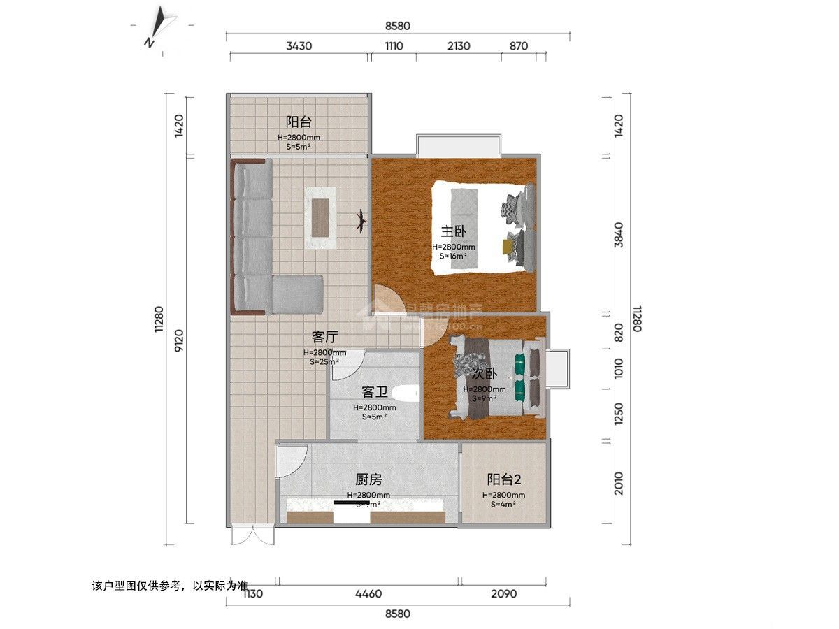
  • 房屋户型 2室2厅 1厨 1卫 1阳台
  • 所在楼层 低层 中层 /共6层
  • 建筑面积 82.72m²
  • 房屋税收 暂无数据
  • 使用面积 0m²
  • 建筑类型 多层
  • 附属面积 0m²
  • 房屋布局 平层
  • 房屋朝向
  • 建筑结构 钢混结构
  • 装修情况 中装
  • 梯户比例 1梯3户
  • 所属学区 射洪坝第二幼儿园
  • 出让年限 暂无数据
  • 交易权属 私产
  • 房屋用途 住宅
  • 房屋标签 步梯
  • 房屋特色 【精品房源】南北通透居,豪华装修配齐,近地铁商圈,学区优
    温馨房地产专注简阳房产30年——用心打造放心中介品牌!
  • 房屋配套 床;衣柜;餐桌;沙发;书桌;橱柜;电视;空调;冰箱;洗衣机;油烟机;灶具;热水器;有线;宽带;WIFI;

房源照片

户型图
看房记录
带看时间
带看经纪人
咨询电话
2026-03-01
15108150177
2026-02-02
15983247376
近7天带看次数
0
- 总带看 2 次 -

世外桃苑地址

为你推荐新房 查看更多