河东精装修套三带全套出售

  • 图片(8)
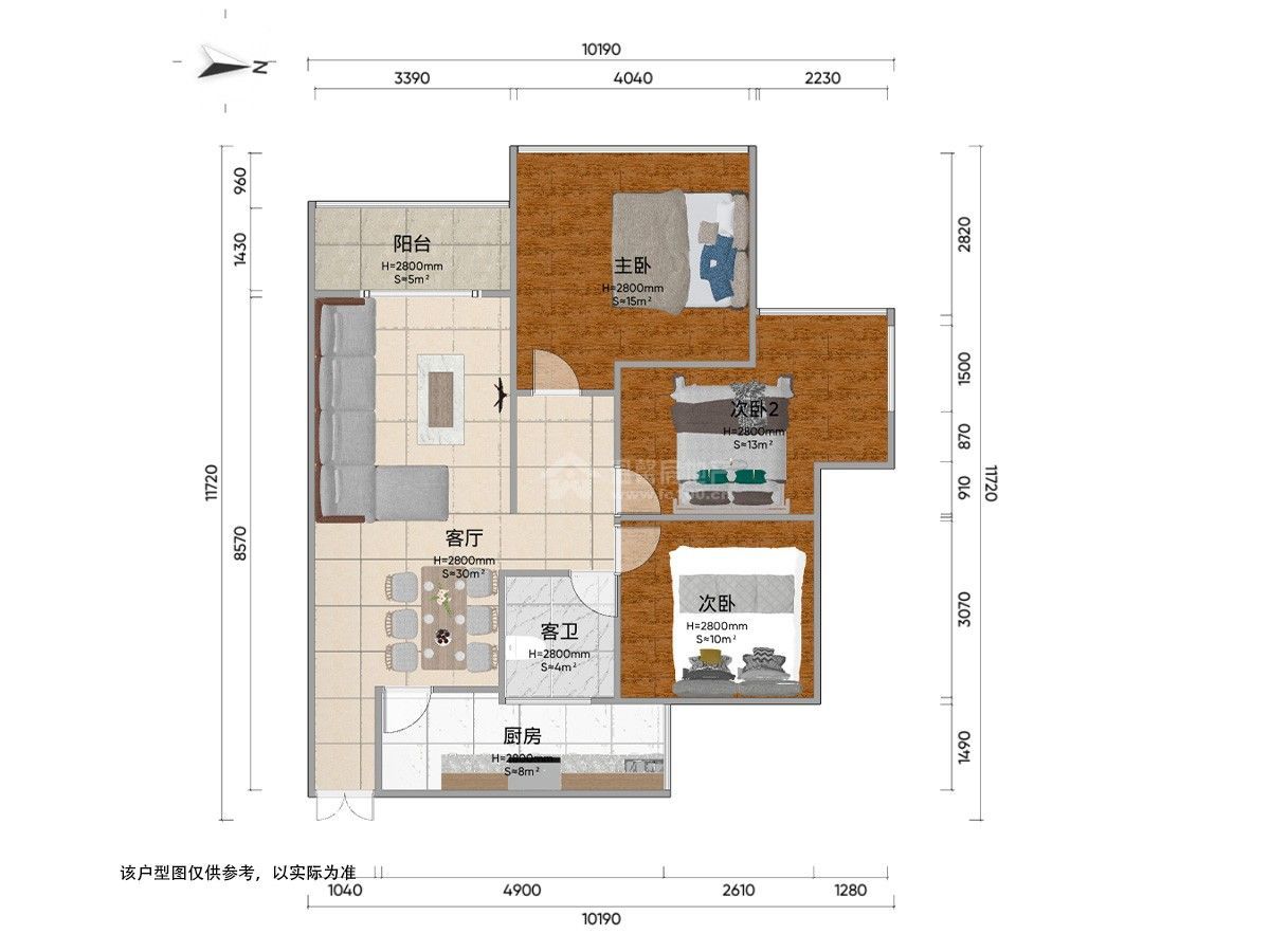
  • 户型图(1)
分享房源
79.8
8004.01 元/m²
3室2厅
高层 /共32层
东南
精装
99.7m²
年代不明/ 住宅
小区名称 江东半岛
所在区域 简阳城区   河东新区
所属学区 射洪坝筒车小学
房源编号 M-33986
看房时间 咨询经纪人
13708245485
满两年
电梯
临江

基本信息

基本属性
  • 房屋户型 3室2厅 1厨 2卫 1阳台
  • 所在楼层 高层 /共32层
  • 建筑面积 99.7m²
  • 房屋税收 个税
  • 使用面积 0m²
  • 建筑类型 高层
  • 附属面积 0m²
  • 房屋布局 平层
  • 房屋朝向
  • 建筑结构 钢混结构
  • 装修情况 精装
  • 梯户比例 2梯5户
  • 所属学区 射洪坝筒车小学
  • 出让年限 暂无数据
  • 交易权属 私产
  • 房屋用途 住宅
  • 房屋标签 电梯;临江
  • 房屋特色 该房位于河东新区沱四桥板块的江东半岛,套三单卫,户型方正,赠送面积大,采光好
    温馨房地产专注简阳房产30年——用心打造放心中介品牌!
  • 房屋配套 床;衣柜;餐桌;沙发;书桌;橱柜;电视;空调;冰箱;洗衣机;油烟机;灶具;热水器;有线;宽带;WIFI;

房源照片

户型图
看房记录
带看时间
带看经纪人
咨询电话
近7天带看次数
0
- 总带看 0 次 -

江东半岛地址

为你推荐新房 查看更多