滨河湾精装空房 套三赠送结构板

  • 图片(9)
  • 户型图(1)
分享房源
83.8
8576.4 元/m²
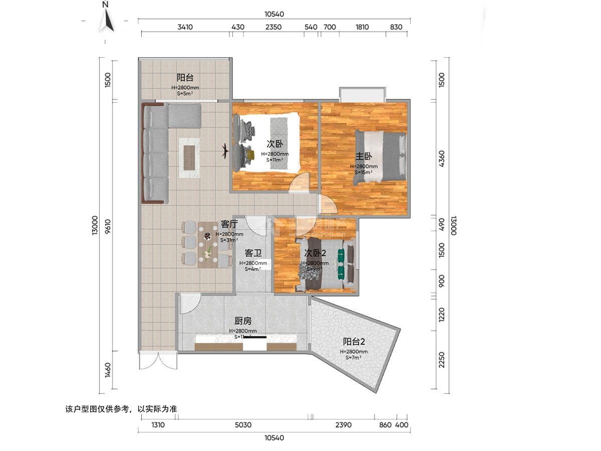
3室2厅
中层 /共26层
西南
精装
97.71m²
2016年建/ 住宅
小区名称 滨河湾二期
所在区域 简阳城区   河东新区
所属学区 射洪坝筒车小学
房源编号 M-40978
看房时间 随时看房
15760022050
19940851158
电梯
随时看房
寄售

基本信息

基本属性
  • 房屋户型 3室2厅 1厨 1卫
  • 所在楼层 中层 /共26层
  • 建筑面积 97.71m²
  • 房屋税收 个税
  • 使用面积 90m²
  • 建筑类型 高层
  • 附属面积 8m² (其它)
  • 房屋布局 平层
  • 房屋朝向
  • 建筑结构 钢混结构
  • 装修情况 精装
  • 梯户比例 3梯6户
  • 所属学区 射洪坝筒车小学
  • 出让年限 70年
  • 交易权属 私产
  • 房屋用途 住宅
  • 房屋标签 电梯
  • 房屋特色 精装空房 赠送结构板 看房方便有钥匙
    温馨房地产专注简阳房产30年——用心打造放心中介品牌!
  • 房屋配套 油烟机;灶具;热水器;

房源照片

户型图
看房记录
带看时间
带看经纪人
咨询电话
近7天带看次数
0
- 总带看 0 次 -

滨河湾二期地址

为你推荐新房 查看更多