云樾铭邸精装套三双卫,未住过

  • 图片(11)
  • 户型图(1)
分享房源
108.8
10461.54 元/m²
3室2厅
中层 /共33层
精装
104m²
2023年建/ 住宅
小区名称 云樾名邸
所在区域 简阳城区   河东新区
所属学区 射洪坝筒车小学
房源编号 M-39372
看房时间 咨询经纪人
18398098783
15760020332
好房推荐

基本信息

基本属性
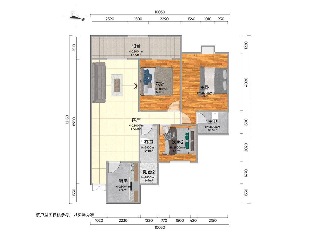
  • 房屋户型 3室2厅 1厨 2卫 1阳台
  • 所在楼层 中层 /共33层
  • 建筑面积 104m²
  • 房屋税收 增值税
  • 使用面积 0m²
  • 建筑类型 高层
  • 附属面积 0m²
  • 房屋布局 暂无数据
  • 房屋朝向
  • 建筑结构 暂无数据
  • 装修情况 精装
  • 梯户比例 3梯4户
  • 所属学区 射洪坝筒车小学
  • 出让年限 暂无数据
  • 交易权属 暂无数据
  • 房屋用途 住宅
  • 房屋标签 暂无数据
  • 房屋特色 此房位于河东新区中心地段,高品质改善住宅,小区有建身房,儿童玩耍区,私宴厅。此房为套三双卫,精装带名牌家电,拎包入住,9层新,房东只住过2天。
    温馨房地产专注简阳房产30年——用心打造放心中介品牌!
  • 房屋配套

房源照片

户型图
看房记录
带看时间
带看经纪人
咨询电话
近7天带看次数
0
- 总带看 0 次 -

云樾名邸地址

为你推荐新房 查看更多